福山市の不動産なら有正不動産にお任せ下さい
Tel. 084-923-1303
 
 
登録物件数 38件2025.12.03更新
売買物件をMAPから探す
売買物件を一覧から探す
 
不動産オーナー様へ
営業日カレンダー
2025年12月
 123456
78910111213
14151617181920
21222324252627
28293031   
営業時間
月~金 9:00~18:00
土曜 9:00~17:00
定休日
日曜・祝日・祭日
 
携帯サイトはこちらから
QRコード
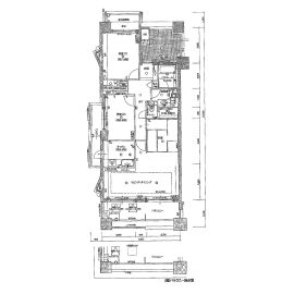
物件種別:中古マンション
物件名:アーバンビュー緑町公園ツインタワー
■交通
福山駅より徒歩20分
 
■販売区画数
—区画
 
■号地
—号地
 
■構造
SRC15階建ての7階部分
 
■築年
2003年11月
 
■間取りタイプ
3LDK
 
■間取り内訳
LDK16.7-洋7.5帖-洋5.6帖-和4.5帖
 
■設備
電気、上水道、下水道、都市ガス、ガス給湯、オートロック
 
■現況
空家
 
■土地権利
所有権
 
■管理形態
全部委託
 
■敷地面積
3270.96㎡
 
■引渡し
即時
 
■国土法届出
 
■備考
南小学校・城南中学校 学区
 
■取引態様
専任
 
■物件管理番号
アーバンビュー緑町公園ツインタワー
 
■情報登録日
2025-12-03
 
■所在地:福山市緑町2番38号
■価格:2,380万円
■占有面積/76.61㎡
■バルコニー面積/18.41㎡
■管理費等/7300円
■修繕積立金/14200円
■駐車場/ 敷地内機械式駐車場:7500円
 
南向きバルコニーで日当たり良好!西側もバルコニー有!
近隣に商業施設・病院・体育館近く生活便利なエリアです。
賃貸物件
賃貸物件
 
 
 
 
 
 
 
 
 
 
賃貸物件
お問い合わせ