福山市の不動産なら有正不動産にお任せ下さい
Tel. 084-923-1303
 
 
登録物件数 33件2027.02.01更新
売買物件をMAPから探す
売買物件を一覧から探す
 
不動産オーナー様へ
営業日カレンダー
2026年03月
1234567
891011121314
15161718192021
22232425262728
293031    
営業時間
月~金 9:00~18:00
土曜 9:00~17:00
定休日
日曜・祝日・祭日
 
携帯サイトはこちらから
QRコード
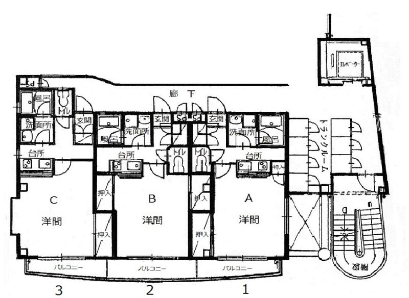
物件種別:マンション
物件名:キャピタルローズ Aタイプ 201号
■所在地:福山市野上町3丁目1-31
■賃料:4万円
■敷金/1ヶ月
■礼金/1ヶ月
■保証金/—
■管理費等/—
■共益費/3,000円
■駐車料/ 8000円~
 
無料Wi-Fi・オートロック・エレベーターのある単身者用マンションです。各部屋にトランクルーム付き。スーパー・コンビニも近く買い物便利なエリアです。
■交通
野上町バス停より徒歩1分
 
■構造
鉄骨造5階建ての2階
 
■築年
1997年3月
 
■間取りタイプ
1K
 
■間取り内訳
7洋-2K
 
■専有面積
30.4㎡
 
■現況
空家
 
■設備
プロパンガス、エアコン、オートロック、エレベーター、フロ・トイレ別、システムキッチン、洗面化粧台、温水洗浄便座、室内洗濯機置場、モニタ-付インタ-ホン、トランクルーム、下駄箱、駐輪場
 
■備考
※保証会社加入条件あり
*駐車場8000円~
*各部屋トランクルームあり
 
■引渡し
即入居可
 
■取引態様
仲介
 
■戸数
 
■鍵交換代
13,200円
 
■保険
19,000円(2年間)
 
■物件管理番号
キャピタルローズ Aタイプ 201号
 
■情報登録日
2026-03-01