Tel. 084-923-1303
|
トップページ
|
お問い合わせ
|
交通アクセス
|
会社案内
|
リンク集
|
個人情報保護方針
|
サイトマップ
|
登録物件数 37件2025.11.27更新
登録物件数 109件2026.11.01更新
学生さん向き物件特集
分譲マンション特集
フリーwifi付きお得物件
シングル向き4万円まで
駅周辺駐車場特集
一戸建て特集
営業日カレンダー
2025年12月
<前月
今月
次月>
日
月
火
水
木
金
土
1
2
3
4
5
6
7
8
9
10
11
12
13
14
15
16
17
18
19
20
21
22
23
24
25
26
27
28
29
30
31
営業時間
月~金 9:00~18:00
土曜 9:00~17:00
定休日
日曜・祝日・祭日
携帯サイトはこちらから
物件種別:中古住宅
物件名:引野町北二丁目 売住宅
■交通
緑丘小学校バス停より徒歩5分
■販売区画数
—区画
■号地
—号地
■構造
木造
■築年
1989年8月
■間取りタイプ
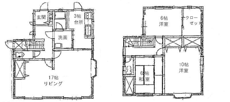
3LDK
■間取り内訳
1F:20LDK 2F:6和-6洋-10洋
■設備
電気、上水道、下水道、都市ガス
■リフォーム内容
—
■地目
宅地
■現況
空家
■都市計画
市街化区域
■用途地域
1種中高層住居専用地域
■建ぺい率
60%
■容積率
200%
■土地権利
所有権
■私道負担面積
—㎡
■地勢
—
■セットバック
—
■引渡し
即時
■最適用途
—
■国土法届出
—
■備考
—
■法令上制限等
建築基準法22条区域・宅地造成等工事規制区域
■取引態様
専任
■物件管理番号
引野町北二丁目 売住宅
■情報登録日
2025-11-01
■所在地:福山市引野町北二丁目7番5
■価格:
2,300
万円
■土地面積/204.88㎡
■土地坪数/61.97坪
■建物面積/109.30㎡
■建物坪数/33.06坪
■駐車場/ 1台込
敷地約60坪以上。ゆったり間取りの3LDKです。1台駐車可能。
更地相談。
検索結果に戻る